Das Fluxus-Modul

Ausstellungsarchitektur für „FLUXUS – Kunst für Alle!“ im Museum Ostwall, Dortmunder U

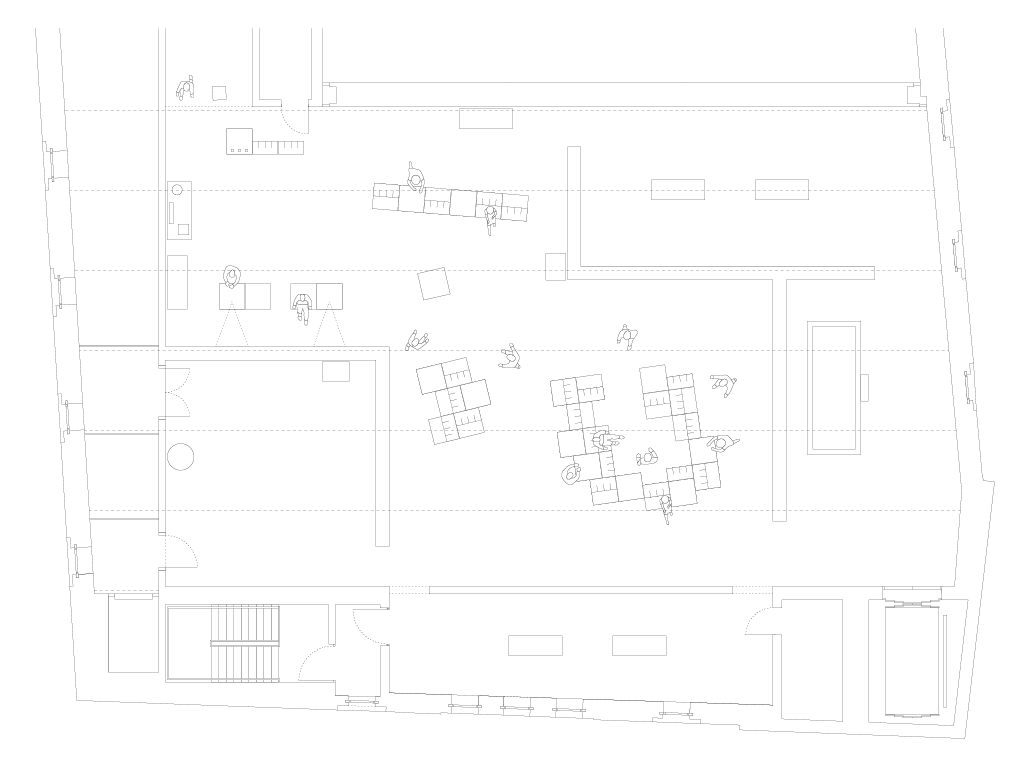
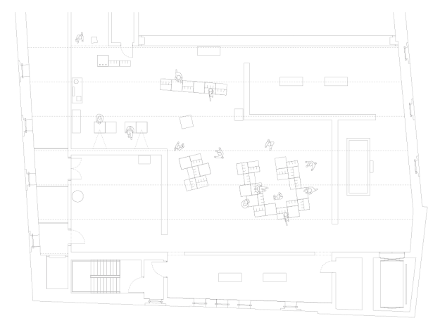
Für die Ausstellung „FLUXUS – Kunst für Alle!“ des Museums Ostwall im Dortmunder U wurde modulorbeat beauftragt eine Ausstellungsarchitektur zu entwerfen. Die Architektur arbeitet mit einem speziell für die Fluxus-Schau entwickelten Ausstellungsmodul aus Furniersperrholz, das auf vielfältige Weise spielerisch eingesetzt wird. Horizontal oder vertikal, als Regal, Vitrine oder Podest fügen sich die Module zu einer prägenden Raumstruktur im großen Oberlichtsaal des Dortmunder U. Mit Einsatzböden und -wänden, sowie Acrylglasscheiben werden die Grundrahmen für die jeweilige Nutzung ausgestattet. Die Fixierung dieser Ausstattungselemente sowie der Module untereinander erfolgt durch gewöhnliches Paket-Spannband.

Beauftragung
Museums Ostwall im Dortmunder U
Fotografie
Thorsten Arendt
Team
Marc Günnewig
Jan Kampshoff
Anna Scheermann

Weitere Projekte