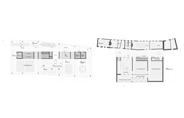
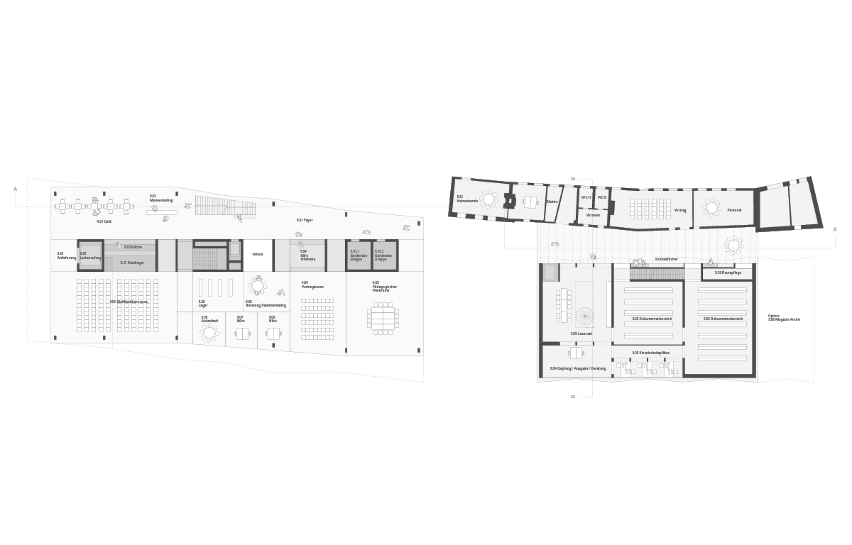
Kulturhistorisches Zentrum Münsterland

Wettbewerb Kulturhistorisches Zentrum Münsterland, Vreden
Beauftragung
Reginale 2016, Westmuensterland
Team
Marc Günnewig
Jan Kampshoff
Henrik Neusüß
Adrian Bochynek

Weitere Projekte